BUSCHE GEWERBEEXPERTEN GmbH
Telefon: +49 (0) 251 / 203 187 40
E-Mail: dialog@busche-gewerbeexperten.de
Internet: www.busche-gewerbeexperten.de
 

Coermühle || 713 m² Produktion-, Service-, Büroflächen || Frei ab sofort

Objektübersicht

Objektart   Halle / Lager / Produktion
Adresse   48157 Münster
Objektnummer   BC-3332
Bürofläche (ca.)   302,70 m²
Gesamtfläche (ca.)   713,28 m²
Kaltmiete   auf Anfrage
Heizkosten sind in Nebenkosten enthalten   ja
Stellplätze   ja
Stellplatzart   Freiplatz
Energieausweis   Verbrauchsausweis
Wesentlicher Energieträger   Öl
Energieausweis gültig bis   2024-05-25
Energieausweis Jahrgang   ab dem 1.5.2014
Energieausweis Stromwert   52.60 kWh / (m²*a)
Energieausweis Wärmewert   55.30 kWh / (m²*a)
Energieausweis Baujahr   1977
Energieausweis Gebäudeart   Gewerbe
teilbar ab (ca.)   302,70 m²
Bodenbelag   Teppich, Kunststoff
bezugsfrei ab   sofort

Objektbeschreibung

Bei diesem Angebot handelt es sich um eine ca. 713,28 qm große Kombination aus Produktions-, Service- und Bürofläche. Diese teilt sich in etwa 303 qm Bürofläche und ca. 411 qm Produktions-/Serviceflächen.

Die Anlieferung erfolgt ebenerdig (...)

Die vollständige Objektbeschreibung, Ausstattungsliste sowie Grundrisse und alle Bilder zu dieser Immobilie finden Sie unter folgendem Link auf unserer Homepage:

https://www.busche-gewerbeexperten.de/Muenster/Coermuehle-713-m-Produktion-Lager-Service-Bueroflaechen-Frei-ab-sofort-obj-BC-3332.html?utm_source=bg24

Ausstattung

- Be- und Entlüftung in der gesamten Mietfläche
- EDV Verkabelung inkl. gekühlter Serverraum vorhanden
- ebenerdiges Rolltor zur gemeinschaftlichen Nutzung
- Druckluftanlage
- teilweise klimatisiert
- PKW Stellplätze auf dem Grundstück in a(...)

Die vollständige Ausstattungsbeschreibung, Objektbeschreibung sowie Grundrisse und alle Bilder zu dieser Immobilie finden Sie unter folgendem Link auf unserer Homepage:

https://www.busche-gewerbeexperten.de/Muenster/Coermuehle-713-m-Produktion-Lager-Service-Bueroflaechen-Frei-ab-sofort-obj-BC-3332.html?utm_source=bg24

Lage

Die Liegenschaft befindet sich im Gewerbegebiet an der Coermühle. Der Standort an der B219 weist eine gute Erreichbarkeit zur Autobahnauffahrt Münster-Nord als auch an den Ring und damit zum Innenstadtbereich der von Münster auf. Eine Anbindung an der ÖPNV ist in 100 Metern Entfernung zur Immobilie gewährleistet.

Sonstiges

MIETPREIS:
Der Mietpreis kann sich abhängig von Ausstattung und Laufzeit des abzuschließenden Mietvertrages ändern und versteht sich als Basispreis zzgl. Nebenkosten und Umsatzsteuer.

PROVISIONSFREI FÜR DEN MIETER:
Die wirtschaftlich notwendige Vergütung erhalten wir vom Objektanbieter.

Folgende Anfragen für die von der BUSCHE GEWERBEEXPERTEN GmbH angebotenen Grundstücke und Bestandsflächen können nicht bearbeitet werden, da die Eigentümer diese nicht als Nutzung wünschen!
- Jede Art von Veranstaltungen und Events (Hochzeiten, Flohmärkte, Konzerte, Filmdrehs etc.)
- Nutzung zu Wohnzwecken

Kontaktinformation

BUSCHE GEWERBEEXPERTEN GmbH
Robert-Bosch-Straße 20 | 48153 Münster
Telefon: +49 (0) 251 / 203 187 40
Fax: +49 (0) 251 / 203 187 41
E-Mail: dialog@busche-gewerbeexperten.de
Internet: www.busche-gewerbeexperten.de

Ihr Ansprechpartner

Ansprechpartnerfoto Herr Steffen Bürger

Herr Steffen Bürger

Telefon: 004925120318747
Telefax: 004925120318741
steffen.buerger@busche-gewerbeexperten.de

Luftansicht Coermühle || 713 m² Produktion-, Service-, Büroflächen || Frei ab sofort
Luftansicht 
Luftansicht Coermühle || 713 m² Produktion-, Service-, Büroflächen || Frei ab sofort
Luftansicht 
Luftansicht Coermühle || 713 m² Produktion-, Service-, Büroflächen || Frei ab sofort
Luftansicht 
Flur Coermühle || 713 m² Produktion-, Service-, Büroflächen || Frei ab sofort
Flur 
Büro Coermühle || 713 m² Produktion-, Service-, Büroflächen || Frei ab sofort
Büro 
Büro Coermühle || 713 m² Produktion-, Service-, Büroflächen || Frei ab sofort
Büro 
Lager/Produktion Coermühle || 713 m² Produktion-, Service-, Büroflächen || Frei ab sofort
Lager/Produktion 
Lager/Produktion Coermühle || 713 m² Produktion-, Service-, Büroflächen || Frei ab sofort
Lager/Produktion 
Lager/Produktion Coermühle || 713 m² Produktion-, Service-, Büroflächen || Frei ab sofort
Lager/Produktion 
Anlieferung Coermühle || 713 m² Produktion-, Service-, Büroflächen || Frei ab sofort
Anlieferung 
Sozialraum mit Küche Coermühle || 713 m² Produktion-, Service-, Büroflächen || Frei ab sofort
Sozialraum mit Küche 
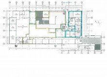
Grundriss mit möglichen Teilungen Coermühle || 713 m² Produktion-, Service-, Büroflächen || Frei ab sofort
Grundriss mit möglichen Teilungen 
Lage Coermühle || 713 m² Produktion-, Service-, Büroflächen || Frei ab sofort
Lage